服务热线


029-3363 1023

格润恩轻钢别墅

— 绿色建筑  美好生活 — 
打造经典佳作 专注轻钢房屋建设

陕西汉青建筑工程有限公司

SHAANXI HAN QING CONSTRUCTION ENGINEERING CO., LTD

网址直达:格润恩.中国

首页 >> 汉青建筑 >>默认分类 >> 自建房:避坑指南 + 美学设计,195㎡两层住得太舒心。
详细内容

自建房:避坑指南 + 美学设计,195㎡两层住得太舒心。

自建房最纠结的莫过于:怕踩坑返工、怕功能浪费、怕颜值拉胯。我们家 11.00×10.80m 的宅基地,最终建成 195.60㎡的两层装配式住宅,从打地基到软装落地,踩过坑也攒了经验,今天就把避坑干货和美学设计全过程分享给大家~


640_wx_fmt=jpeg&wxfrom=13&tp=wxpic&watermark=1.jpg


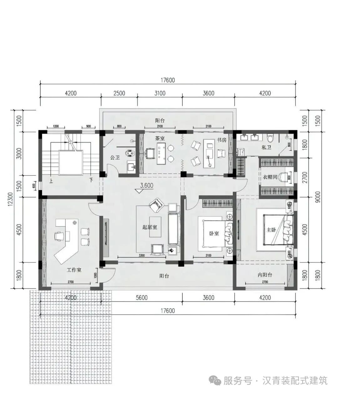
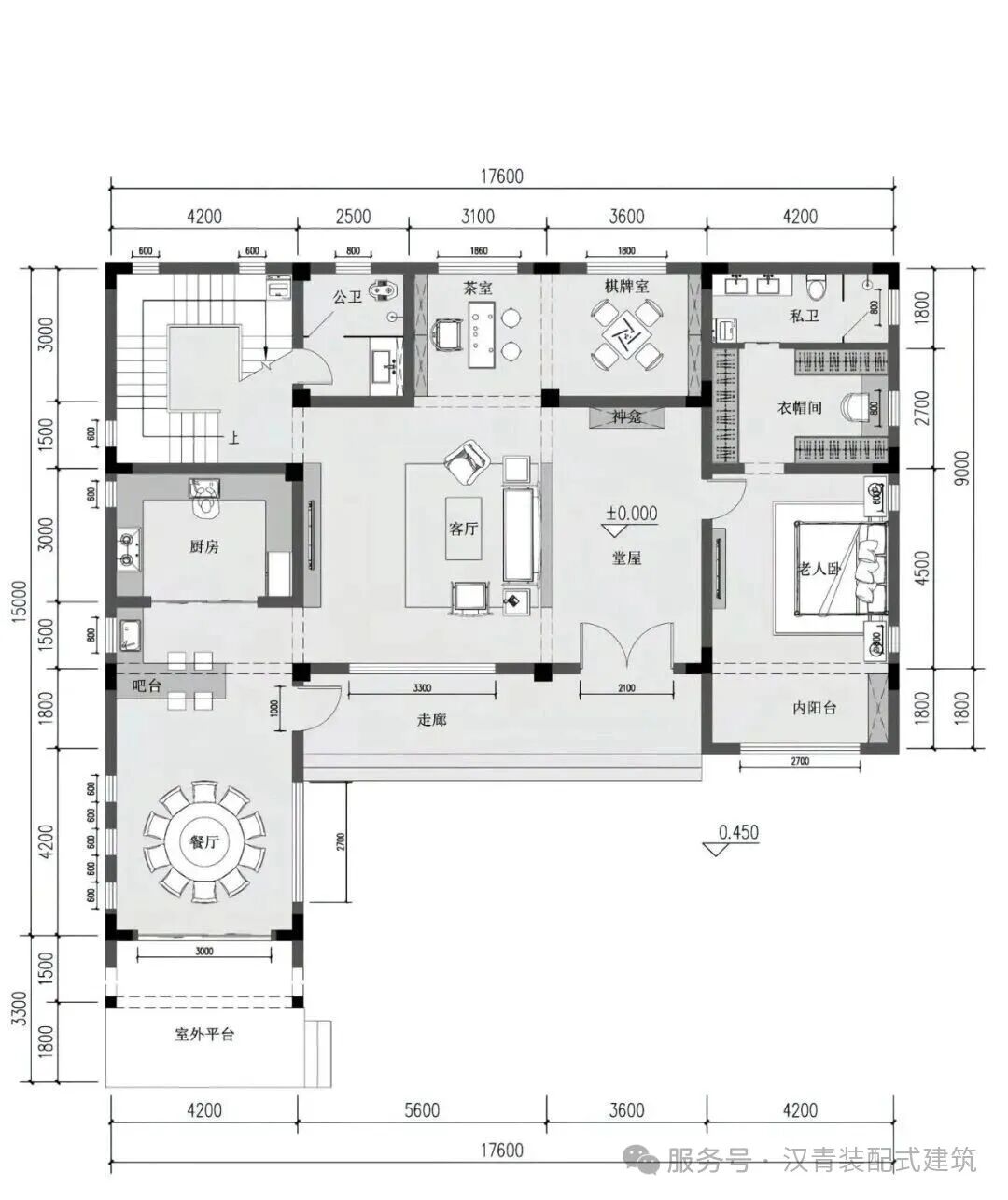
先划核心参数:占地面积 118.8㎡,建筑总面积 195.6㎡,装配式结构 + 两层布局,一层侧重实用待客,二层主打私密休憩,完美适配一家四口的居住需求。


640_wx_fmt=jpeg&watermark=1&tp=wxpic&wxfrom=10005&wx_lazy=1.jpg


避坑指南:这 5 个雷区千万别踩



装配式结构避坑
   一开始想省成本选传统砖混,对比后发现装配式工期短、环保性强,但必须确认厂家资质!我们优先选了有当地备案的品牌,避开了 “拼接不牢固”“防水差” 的坑,安装时全程盯工,要求节点处额外加固,至今没出现渗水、异响问题。
640_wx_fmt=jpeg&watermark=1&tp=wxpic&wxfrom=10005&wx_lazy=1 (1).jpg
尺寸规划避坑
   宅基地不算大,11×10.8 的尺寸最怕 “动线拥挤”。设计时果断放弃 “大而空”,一层外廊留 1.8m 宽,刚好满足日常通行 + 晾晒;客厅开间 4.5m,既不压抑也不浪费,避免了 “走廊过窄”“房间门对门” 的尴尬。
640_wx_fmt=jpeg&watermark=1&tp=wxpic&wxfrom=10005&wx_lazy=1 (2).jpg
功能布局避坑
 一层原本想只设一个卫生间,后来考虑到客人使用 + 老人起夜,增设了第二个公卫,位置选在卧室和客厅之间,动线最短;厨房必须紧邻餐厅,且预留了冰箱、洗碗机的嵌入式位置,避开了 “做饭绕路”“收纳不足” 的坑。
640_wx_fmt=jpeg&watermark=1&tp=wxpic&wxfrom=10005&wx_lazy=1 (3).jpg
 排水防水避坑
 二层有露台和两个卫生间,防水是重中之重!露台做了 3 层防水 + 找坡设计,卫生间采用 “下沉式 + 同层排水”,瓷砖通铺到顶,至今没出现漏水情况,建议大家防水预算一定要拉满,别省!

640_wx_fmt=jpeg&wxfrom=13&tp=wxpic&watermark=1.jpg
 采光通风避坑
 装配式建筑外墙保温好,但开窗位置很关键。一层客厅、餐厅都做了落地窗,二层卧室留了飘窗 + 露台门,确保每个房间都能自然采光,避免了 “暗卫”“黑厨房” 的问题。
640_wx_fmt=jpeg&watermark=1&tp=wxpic&wxfrom=10005&wx_lazy=1 (5).jpg
  外观美学
 装配式建筑线条简洁,我们选了 “浅灰外墙 + 深灰屋面瓦” 的搭配,低调耐看。外廊用防腐木铺地,搭配白色栏杆和悬挂绿植,既能遮挡阳光,又增添了自然气息,没有做复杂装饰,却让整体质感拉满。

一层布局美学
外廊作为过渡空间,摆放藤编座椅 + 小茶几,成为日常喝茶、看风景的角落;客厅放弃传统电视墙,用原木电视柜 + 投影幕布,搭配浅灰色沙发,简约又温馨;餐厅紧邻厨房,圆形餐桌 + 吊灯,营造出聚餐的氛围感,两个卫生间都做了干湿分离,用玻璃隔断代替砖墙,视觉上更通透。
640_wx_fmt=jpeg&watermark=1&tp=wxpic&wxfrom=10005&wx_lazy=1 (6).jpg
二层布局美学
 起居室作为家庭休闲区,连接露台,用榻榻米 + 书架打造 “亲子互动空间”,孩子看书、大人办公都合适;露台是点睛之笔,铺防腐木、种上花草,搭配户外休闲椅,晚上能看星星;卧室以简约为主,原木床 + 浅色窗帘,衣帽间做顶天立地柜,收纳能力拉满,卫生间用灰色瓷砖 + 智能马桶,实用又显高级。
640_wx_fmt=jpeg&watermark=1&tp=wxpic&wxfrom=10005&wx_lazy=1 (7).jpg


总结:自建房的核心是 “适配”


195.6㎡的两层自建房,没有追求极致奢华,却在实用与美学之间找到了平衡。

  装配式结构省了工期,合理布局避了浪费,简单的装饰反而更显温馨。

   其实自建房不用跟风,根据宅基地尺寸、家庭需求做设计,避开那些没必要的坑,就能建成让自己满意的家~

如果你也在准备自建房,欢迎评论区分享你的宅基地尺寸和需求,一起交流避坑经验呀!



Copyright @ 2019 . All rights reserved. 

      陕西汉青建筑工程有限公司  

      格润恩轻钢别墅  

      电话:029-3363 1023

      地址:西安市西咸新区沣东新城上林路四号远立电气工业园

      技术支持:新动力网络科技

格润恩轻钢别墅

格润恩官方公众平台

029-3363 1023

中文网址直达:格润恩.中国

seo seo